
Хавьер Артади (Javier Artadi) спроектировал этот современный дом в 2002 году для клиента, живущего в столице Перу, городе Лима. Живописные фотографии особняка говорят сами за себя, но попробуем предоставить небольшое описание для гостей Форум-Града.

Этот оригинальный особняк располагается на склоне одного из живописных холмов Лас Казуаринас и из окон открывается впечатляющая панорама на живописные виды города. Это поистине великолепное жилье.


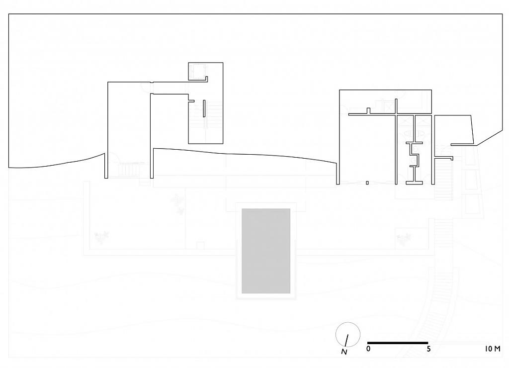
Дизайнеру была поставлена задача распланировать дом таким образом, чтобы он состоял не только из традиционных жилых помещений (гостиной, столовой, спальни), но и включал в себя тренажерный зал и сауну.


Концептуальное решение поставленной задачи заключается в объединении трёх боксов, объединённых в трёх измерениях под углом 90 градусов. Во втором, который расположен параллельно улице, находятся спальня и гостиная. Третий бокс, размещённый перпендикулярно земле, включает основную комнату и выступает перед домом, образуя дополнительное помещение. На верхнем этаже даже есть целая мини-квартира для гостей. Остальная часть планировки представляет собой задний двор и пристройки.


Отличительной чертой этого экстравагантного особняка является огромный бассейн, который простирается прямо со склона холма.

Строение представляет собой объёмную композицию, которая резко контрастирует с естественным рельефом участка.













