
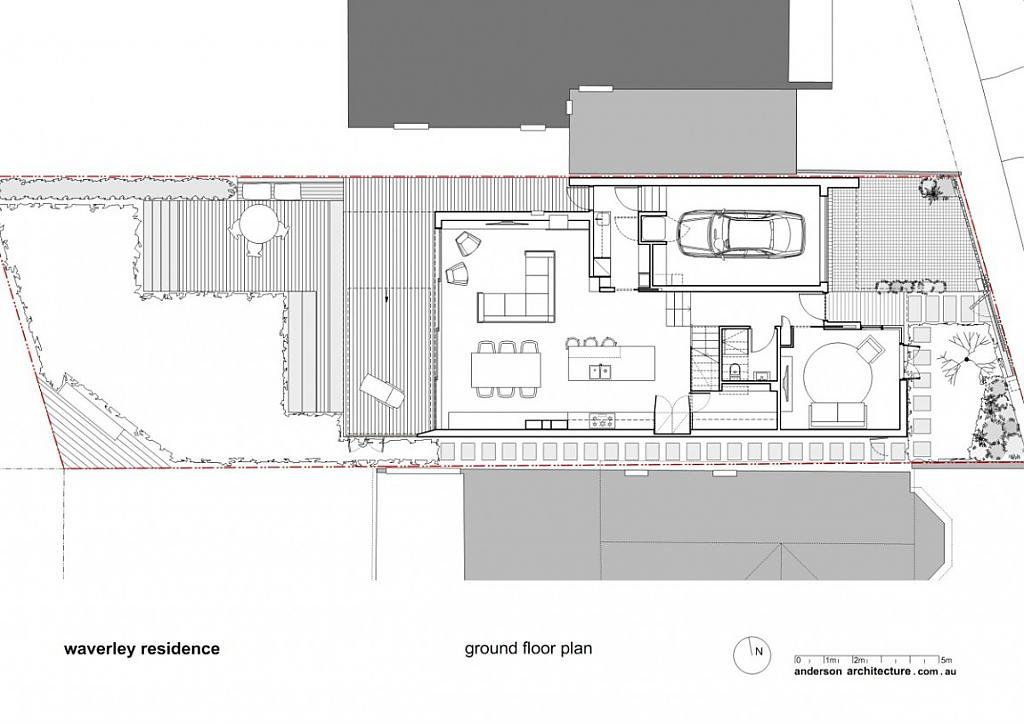
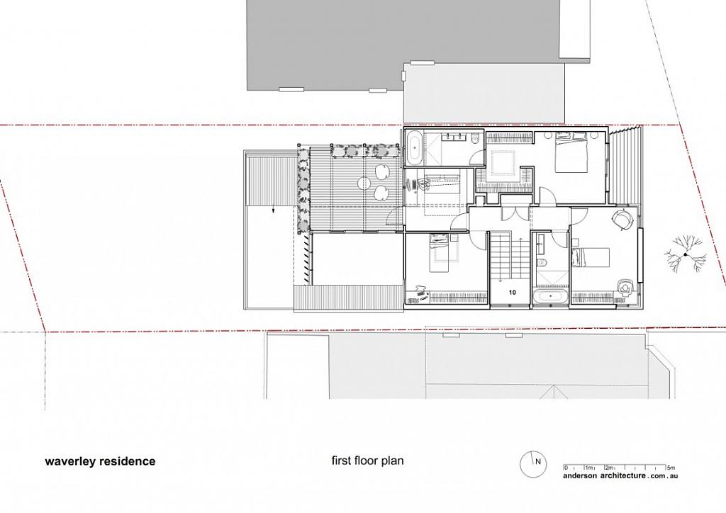
Усадьба была разработана известными мастерами и расположена в Уэверли в Новом Южном Уэльсе. Её асимметричный фасад немного удивит пользователей Форум-Града, однако он сохраняет внешность интересной, а интерьер делает наводнённым светом из многочисленных окон на всём протяжении стен. Этот проект является наиболее эффективным с точки зрения отопления, когда-либо созданным фирмой до настоящего времени.
Тепловое моделирование было спланировано с помощью новейших программ и стало возможным благодаря компьютеризации системы обогревания. Дом требует очень небольшого нагрева или охлаждения, при этом используются пассивные солнечные методы, внутреннее количество тепла и естественная вентиляция, чтобы поддержать удобную и комфортную, здоровую внутреннюю среду.
Основной аспект, который был здесь затронут, — это чрезмерное воздействие с запада и большое строение на север, что помогло ведущим дизайнерам интерьера сориентироваться и определить высоту и форму крыши, которая захватила бы побольше света с этой части.



















Материалы любезно предоставлены Anderson Architecture
