
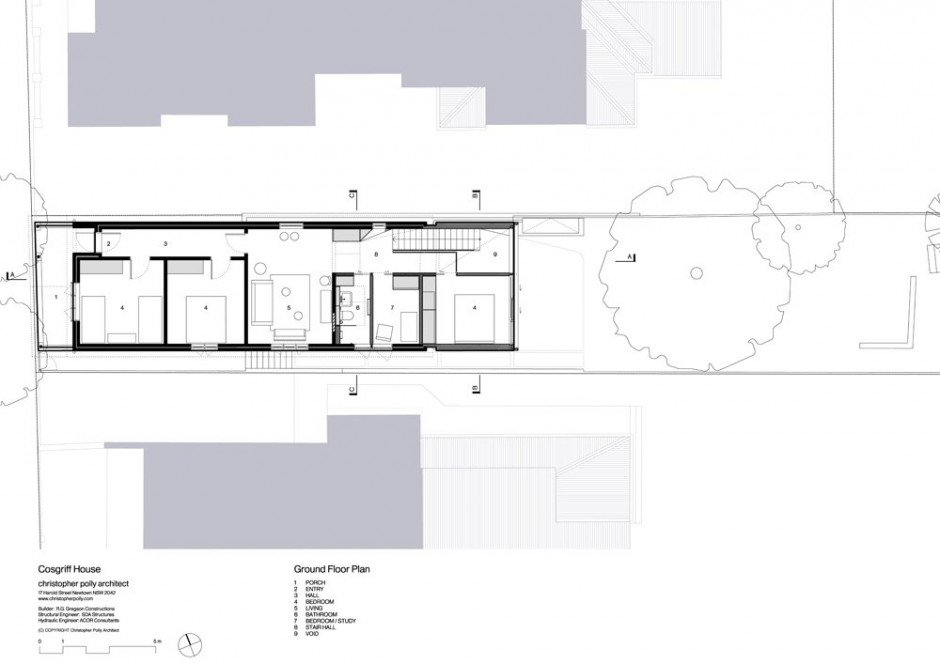
Форум-Град предлагает обратить внимание на Cosgriff House, который расположен в Сиднее, Австралия. Его главной особенностью является реализация максимума жизненного пространства при минимальном размере участка, который имеет к тому же вытянутую форму. Недавно произведённое, благодаря идее архитектора, расширение открывает полностью застеклённый фасад резиденции в сторону сада, добавляя больше жилой площади и естественного света. Здание выше соседних домов и с третьего уровня, который был надстроен на существующую основу, открывается великолепный вид на восток.
Хорошо продуманная планировка предлагает свободный доступ к новым интерьерам. Нижний уровень, который частично представляет собой цокольный этаж, включает гостевую, кухонную и столовую зоны и обеспечивает соединение жилого пространства с садом. Выше находится основная спальня, ванная комната, а так же комнаты, которые могут быть адаптированы в спальни в случае приезда гостей.
Christopher Polly удалось на столь узком участке создать уютный и просторный жилой интерьер, дом мечты. Это стало возможно за счёт расширения, при этом, почти не нарушив пропорций заложенных строителями изначально.


















