Резиденция Fendi спроектирована фирмой rGlobe Architecture. Закончена в 2013 году, расположена в Майами, Флорида, США. Этот современный дом построен в идеальном месте.




Вилла Fendi сконструирована таким образом, что ее внутренне пространство отлично гармонирует с окружающей обстановкой. Он расположен в отличном месте с потрясающими природными видами, окружающие пейзажи – лучший инструмент дизайна виллы.


Вилла построена с учетом проникновения как можно больше естественного света, она тонко вписывается в окружающий ландшафт. Простая форма постройки здания позволяет максимально открыть вид на побережье. При строительстве использованы консольные объекты, создающие впечатление воздушности и невесомости.




На первом этаже расположена просторная галерея, она служит в качестве комнаты для приемов гостей, из нее открывается прекрасный вид на море.


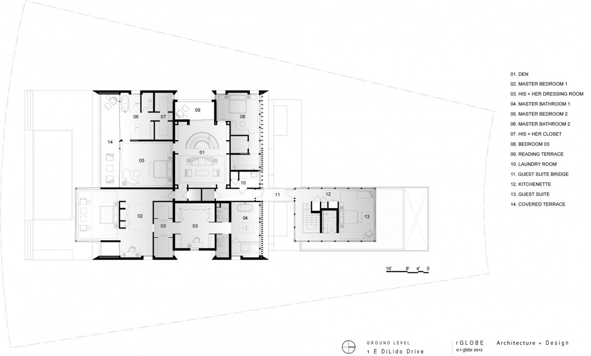
На втором этаже расположена частная жилая зона, спальни и террасы, комнаты для чтения и работы, гостевая комната. Спальня расположена на консоли, поднята над садом и повернута фасадом к морю.
В ней есть стеклянные двери, позволяющие соединить ее с открытым пространством террасы, плавный переход интерьера позволяет любоваться видами на Down Town и South Beach.








