Pepiguari House – это великолепная частная резиденция, которая была разработана архитекторами из Brasil Arquitetura и завершена в 2013 году. Она располагается в Сан-Паулу, Бразилия.

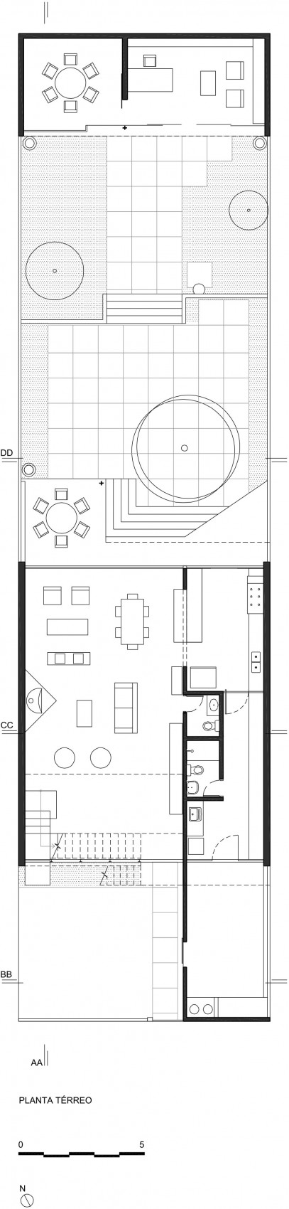
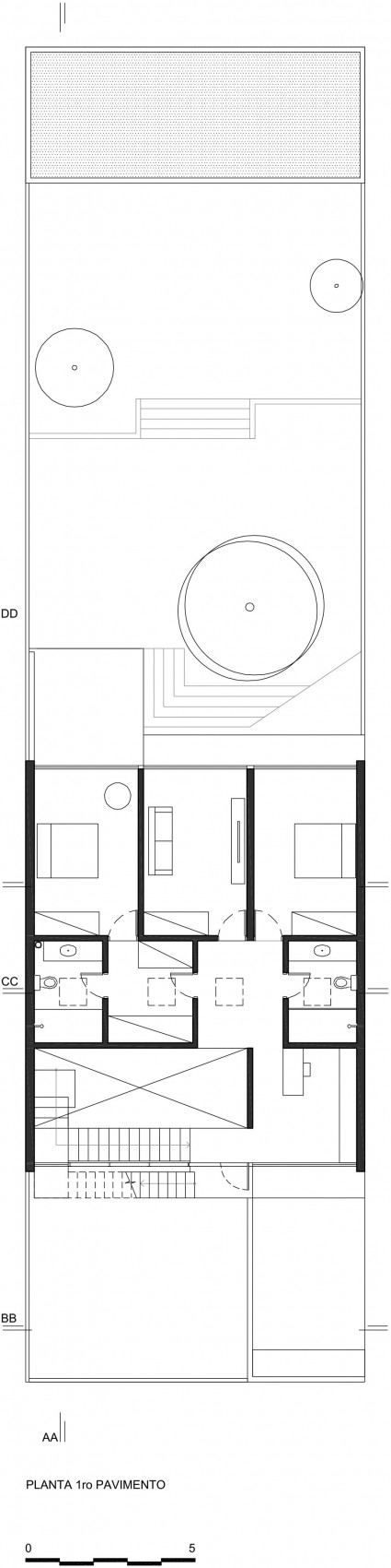
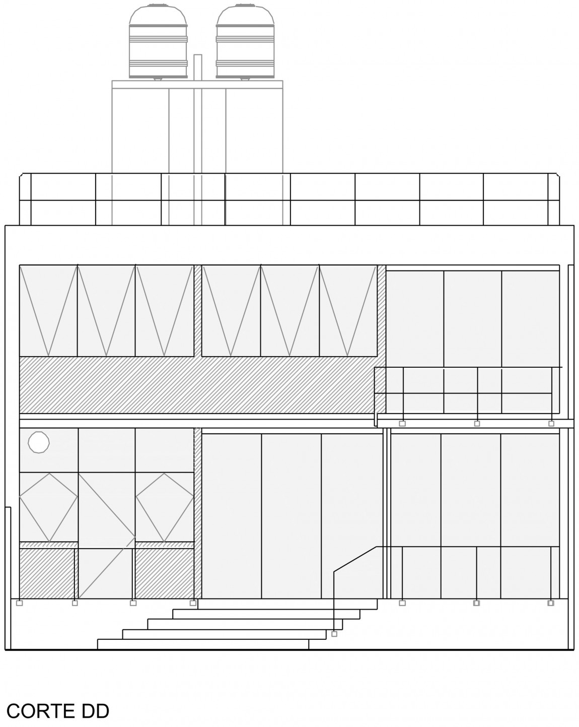
Это строение характеризуется рациональной организацией пространства. Она структурирована по бетонной стене, что, так сказать, режет по объёму, отделяя сторону обслуживания от социальной зоны. Все оконные и дверные рамы, которые соединяют внутреннее и внешнее пространства, изготовлены из нержавеющей стали и стекла.
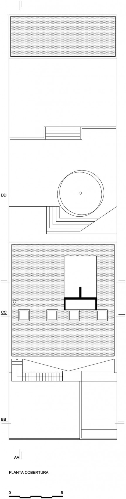
Также здесь существуют corten лестницы, которые можно увидеть на лицевой стороне фасада. Они ведут к террасе на крыше, где есть сад, и откуда открывается вид на мегаполис. Внутри холод необработанных материалов сочетается с теплотой светлой древесины и мебелью, а также с некоторыми предметами декора, например, картинами, или даже с цветной посудой на кухне.




























Дом в Бразилии от Brasil Arquitetura.
