Уважаемые посетители и постоянные участники нашего Форум-Града, с радостью представляю вам очередное творение замечательных бельгийских архитекторов компании HVH Architecten. Резиденция была спроектирована по специальному заказу клиента в 2007 году, в Кербергене. Основным и очень настойчивым пожеланием заказчика было построение здания таким образом, чтобы внутрь него максимально проникал солнечный свет, и сохранялось чувство полной гармонии с природой. И сотрудникам архитектурного бюро удалось удовлетворить все запросы владельца в полной мере.




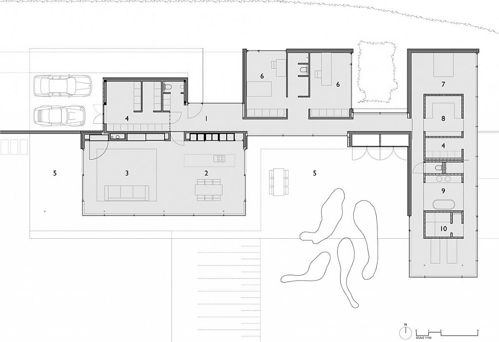
HVH Architecten о своей работе: Мы руководствовались пожеланиями клиента, поэтому планировка дома представляет собой удлинённую конструкцию с множеством внутренних двориков, где каждая локация индивидуальна и имеет своё определённое предназначение. Оно зависит от того, куда направлены просторные окна, которые создают особую, неповторимую связь с природным окружением. Гостиные комнаты выходят на южную и западную часть, спальни — на восток, а северная сторона постройки практически вся закрыта.



В разработке проекта участвовал известный ландшафтный дизайнер Patrick Verbruggen, и он с успехом добился полной интеграции жилища с природной красотой местности. Резиденция расположена рядом с небольшим искусственным водоёмом, благодаря чему имеется замечательная возможность увеличить открытое пространство с южного края участка. Внутренние блоки строения буквально сливаются в саду. Из гостиной можно выйти на любую из двух прилегающих к ней террас. Консольная плита покрывает западную часть здания, объединяя жилое помещение и находящуюся по другую сторону садового ограждения автомобильную стоянку.

Остальная территория строения отведена под офис и детскую спальню. Своё место заняла и зона отдыха с выходом на просторную площадку с бассейном и сауной. В целом интерьер выполнен в духе современного минимализма, воплощающего в жизнь модные тенденции в сфере дизайна.











