
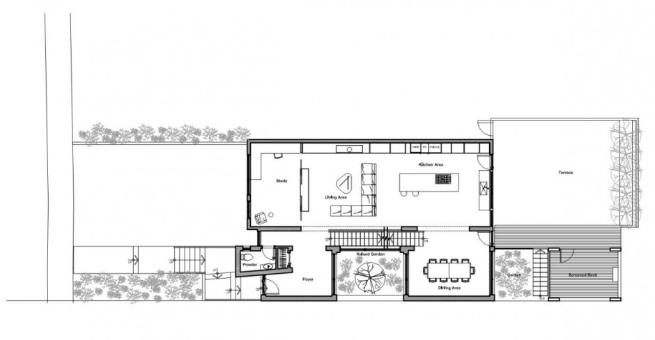
Продолжая тему интерьеров на нашем популярном форуме, представляем интересное владение Westboro в провинции Онтарио. Изначально небольшая допустимая площадь объекта подтолкнула к необычной концепции, олицетворением которой является использование большого количества стеклянных конструкций. Благодаря им с трёх сторон в помещение проникает солнечный свет, а четвёртая остаётся открытой со двора.
Яркое, живое строение, реализованное под индивидуальные потребности своих владельцев. Несмотря на довольно строгий внешний вид, внутри оно наполнено ощущением семейного тепла и уюта. Черно-белые тона стен, распахнутые окна и небольшой ухоженный сад – визитная карточка дома.

Буйно разросшаяся растительность на приусадебной территории создаёт впечатление, будто участок находится в зеленном оазисе, вдали от любопытных глаз. Коттедж и флора объединены гармоничным решением. Контрастные двери гаража чуть отступают от тротуара, уступая место автотранспорту. Лестница, «одетая» в белую кладку кирпичей, застыла в приветствии гостей. Объёмное фойе переходит в просторную гостиную, выполненную в минималистическом ключе, без лишних деталей.
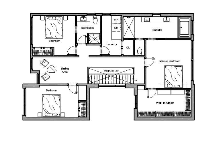
Черно-бежевые ступеньки переносит на второй этаж, где вашему взору предстаёт фешенебельная кухня. Изящные спальни оформлены для полноценного отдыха после трудового дня. Утончённая ванная комната привнесёт окончательный штрих в расслабляющую атмосферу. Цвета интерьера подобраны в сдержанной гамме. Это отличный вариант для людей, предпочитающих стильное и уютное жилье.
















Форум-Град будет продолжать обсуждение этого проекта, разработаного архитектурной фирмой Kariouk Associates. Присоединяйтесь!
