Проект 21 Jervois Hill от студии AR43 Architects – это гармонично вписавшееся в естественный ландшафт здание, в котором чудесным образом сплелись мотивы окружающей природы и удобство современной архитектуры.

Необычный особняк расположился в густонаселённом Сингапуре, в одном из его первоклассных торговых районов. Окружённое зрелым тропическим лесом, это место вызывает необыкновенное спокойствие. Поэтому естественным желанием клиента было создать дом как заповедник, в котором с лёгкостью можно было бы укрыться от суеты цивилизации и погрузиться в негу умиротворения и единения с природой.
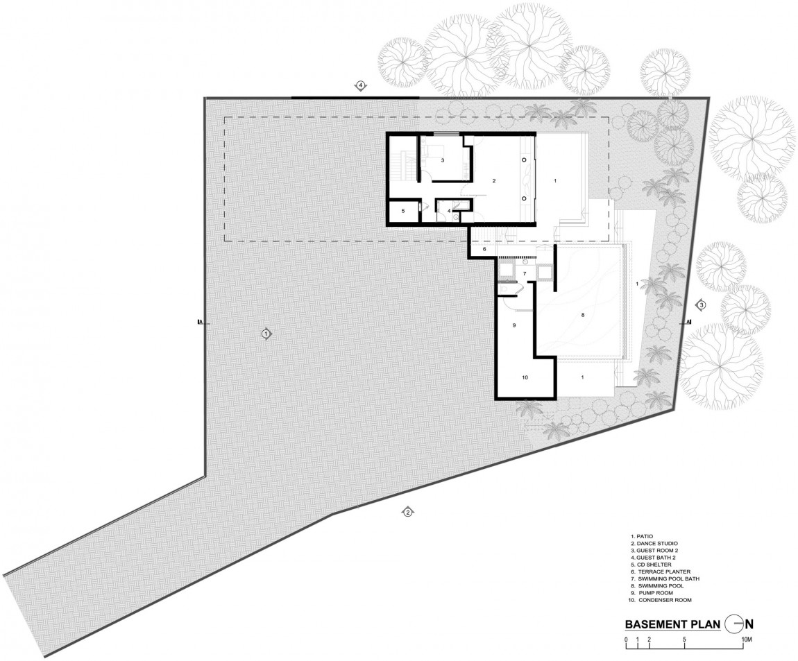
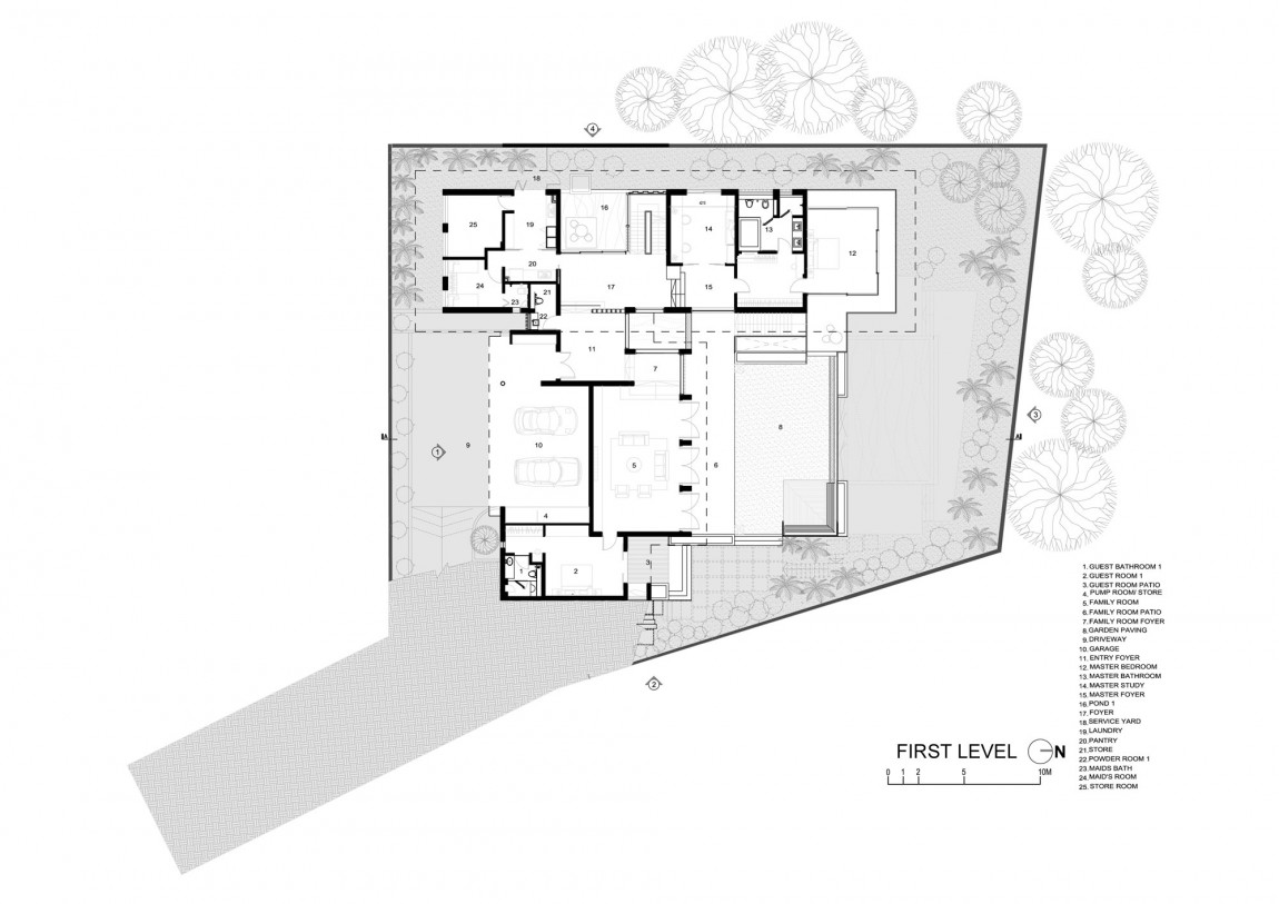
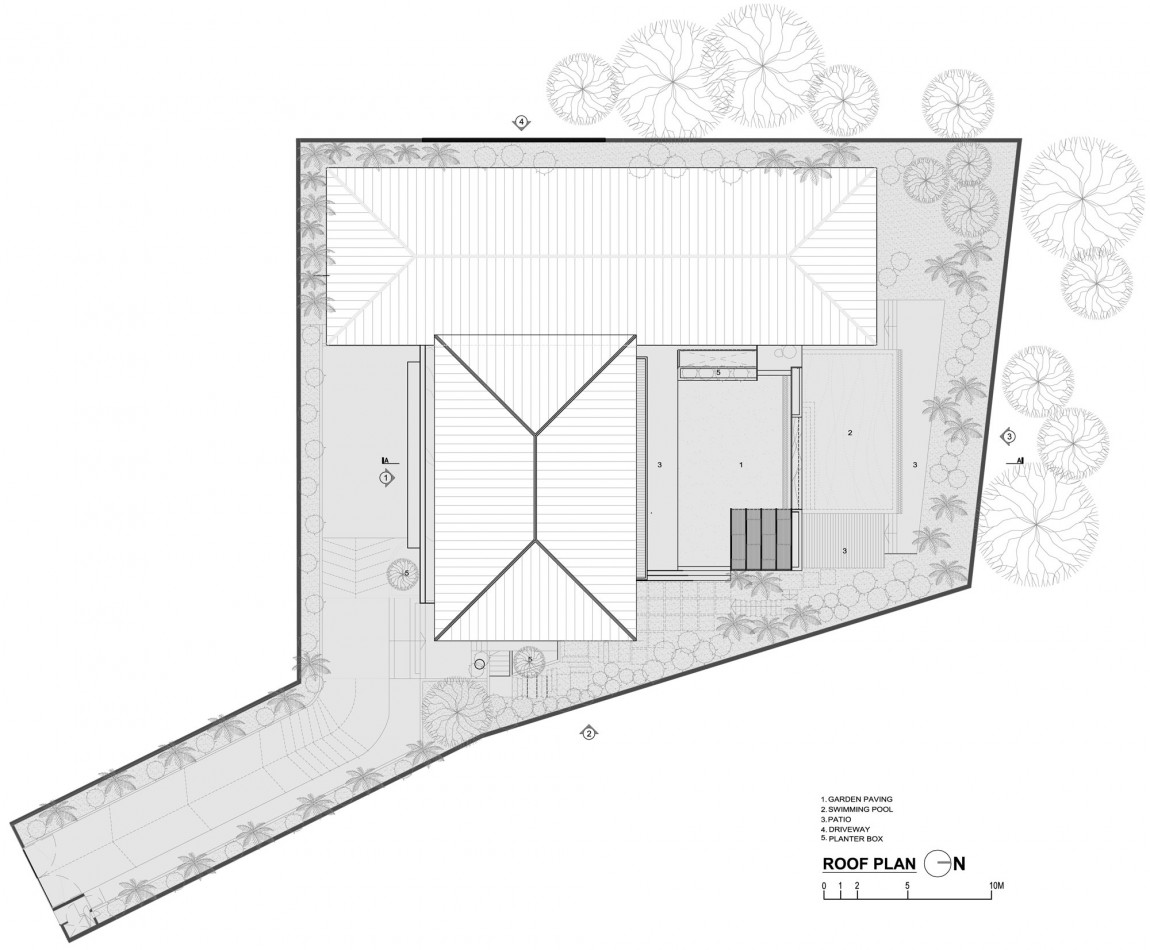
Основное жилое пространство располагается в его большей части, которая похожа на просторный павильон. В то время как личные комнаты разместились в примыкающем крыле. Свисающая над восточной и западной частями строения крыша защищает жильцов от безжалостного тропического солнца.
С одной из сторон особняка обустроен каскадный фонтан, впадающий в небольшой бассейн. С другой — узкий и длинный пруд, огибающий здание. Все это как естественные природные элементы объединяют дом с окружающим ландшафтом.
Невероятное чувство умиротворения, покоя и гармонии навевает это уютное место. Мы искренне надеемся, что и вы, дорогие читатели Форум-Града, вместе с нами получили огромное удовольствие от нашего виртуального путешествия.
















По материалам AR43 Architects. Фотографии любезно предоставлены Albert KS Lim.
