Специально для гостей Форум-Града представляем фотоотчет дизайна интерьера от Federico Delrosso.
Ремонт частного дома, расположенного в Монте-Карло, был проведён в 2012 году.










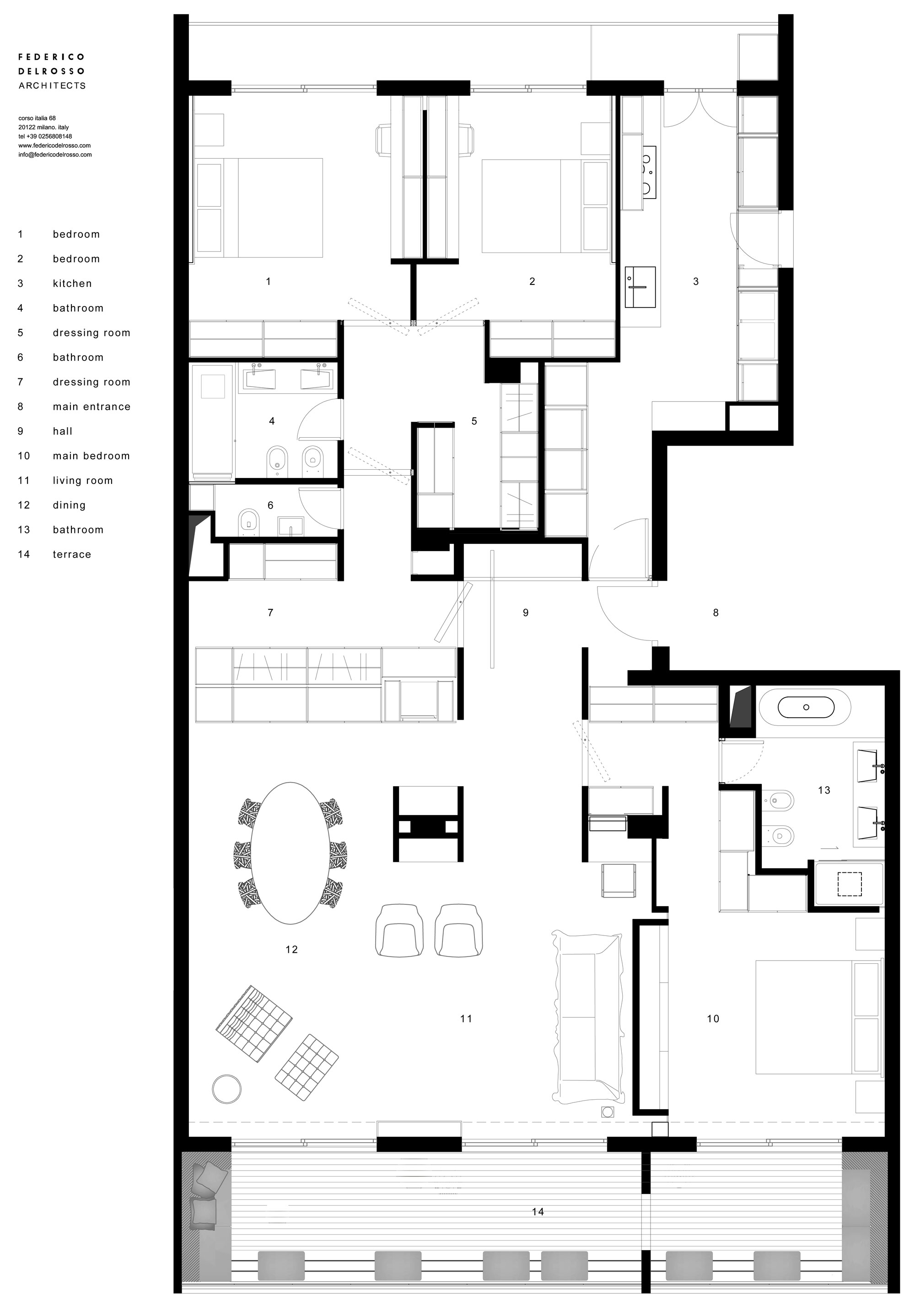
Большая квартира на 14-м этаже здания 1960-х годов принадлежит семье из четырех человек. Они любят искусство и современный дизайн. Ремонт был направлен на симуляцию космической пустоты, с тем, чтобы создать идеальные условия для повседневной жизни семьи.










В итоге от прошлого дизайна остались лишь наружные стены и оконные рамы. Архитектор по-своему разделил пространство, создав уникальные области при помощи перегородок и встроенного освещения.



