Форум-Град желает доброго времени суток вам, дорогие читатели! Сегодня мы познакомимся с прекрасной частной резиденцией, расположенной в Лиме, Перу. Целью архитекторов было создание дома для постоянного проживания заказчика. Получился настоящий шедевр, неописуемое зрелище!

Нет, это не просто здание, а бесподобный космический корабль с храбрыми и бесстрашными героями внутри! Вы только посмотрите, какое монументальное и величественное строение!



В элитном дизайне интерьера, а также прилегающей территории безоговорочно торжествует Его Величество Камень!


Создатели проекта достигли всех поставленных целей. Они стремились возвести особняк для всей семьи: детей и их родителей. У них это, бесспорно, получилось.


Прекрасная мебель, отличающаяся яркими текстурами, замечательно гармонирует с искусственными и натуральными строительными материалами. Не верите? Смотрите сами.



Что обычно остаётся вне пристального внимания гостей и даже жильцов? Правильно! Туалеты, ванные комнаты, лестницы. Даже здесь дизайнеры постарались на славу: внутренняя отделка выполнена на высшем уровне, недостатков вы не увидите. А взгляните на необычные элементы декора: всё та же, уже полюбившаяся нам, космическая тематика. Превосходно!



Любой человек после изнурительного рабочего дня нуждается в отдыхе, расслаблении, релаксации, покое и медитации. С каждым уходящим лучом солнца кажется, что и дом потихоньку засыпает. Осторожно и тихо, чтобы не мешать своим хозяевам.














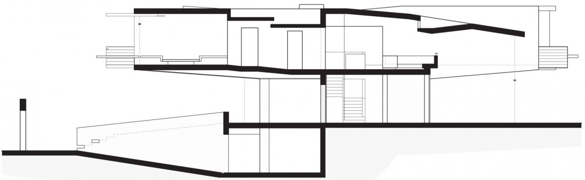
Материалы любезно предоставлены Longhi Architects.
