Форум-Град всё время ведёт работу по поиску прекрасного, чтобы в очередной раз угодить своему искушённому читателю. Сегодня это творение Haus SK, выполненное TWO IN A BOX – ARCHITEKTEN ZT GMBH.
Проект располагается в Австрии. Безупречное озеленение и интересный интерьер придают ему невероятную элегантность и уют.

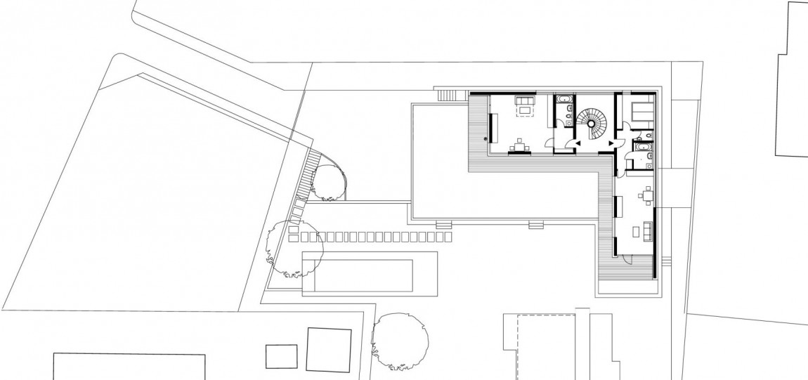
Новые идеи по изменению дома были внесены самими владельцам. Они пожелали, чтобы переделка здания началась с разрушения старой конструкции, за исключением стен основания, а затем последовало превращение в элемент современной архитектуры. В верхней части фундамента находилась отличная винтовая лестница, которую также решили оставить и в обновлённом варианте расположили её над садом.
Вилла имеет L-образную форму. С юго-западной стороны перед садом и входом дизайнерским решением стала установка стеклянных витражей.
Освещение, которое исходит от первого этажа, а также наличие навеса создают потрясающее сочетание игры форм и света. Традиционные гостиная и спальные комнаты расположены на одном этаже, остальная часть здания делится на такие области, как сад, веранда, бассейн и пруд.
Интегрированная ванная комната и сауна выполнены в восточном стиле, образуя личное пространство и оздоровительный мини-центр.
Две комфортных комнаты на верхнем этаже с прекрасным видом на предгорья Альп создают оптимальные условия для детей и гостей дома.
Навесные крыши с западной и южной стороны дома, раздвижные ставни, гладкие белые фасады и поверхности привносят в проект открытый и гостеприимный средиземноморской характер.












