
Casa CorMAnca расположен в Ciudad de México, México. Элементы домашнего стиля в обрамлении камня почти вулканического происхождения могут поразить масштабностью пользователей Форум-Града, а их оригинальное сочетание с идеей внутреннего и внешнего садика просто гениально. Здание расположено на двенадцатиметровом земельном участке. Здесь преобразован монолитный объем для достижения того, чтобы внутренние места заиграли новым ярким светом. Каменная отделка во внешних фасадах противопоставлена мягкому буку деревянной отделки, благодаря этому вы сможете постичь большое и богатое открытое космическое ощущение.
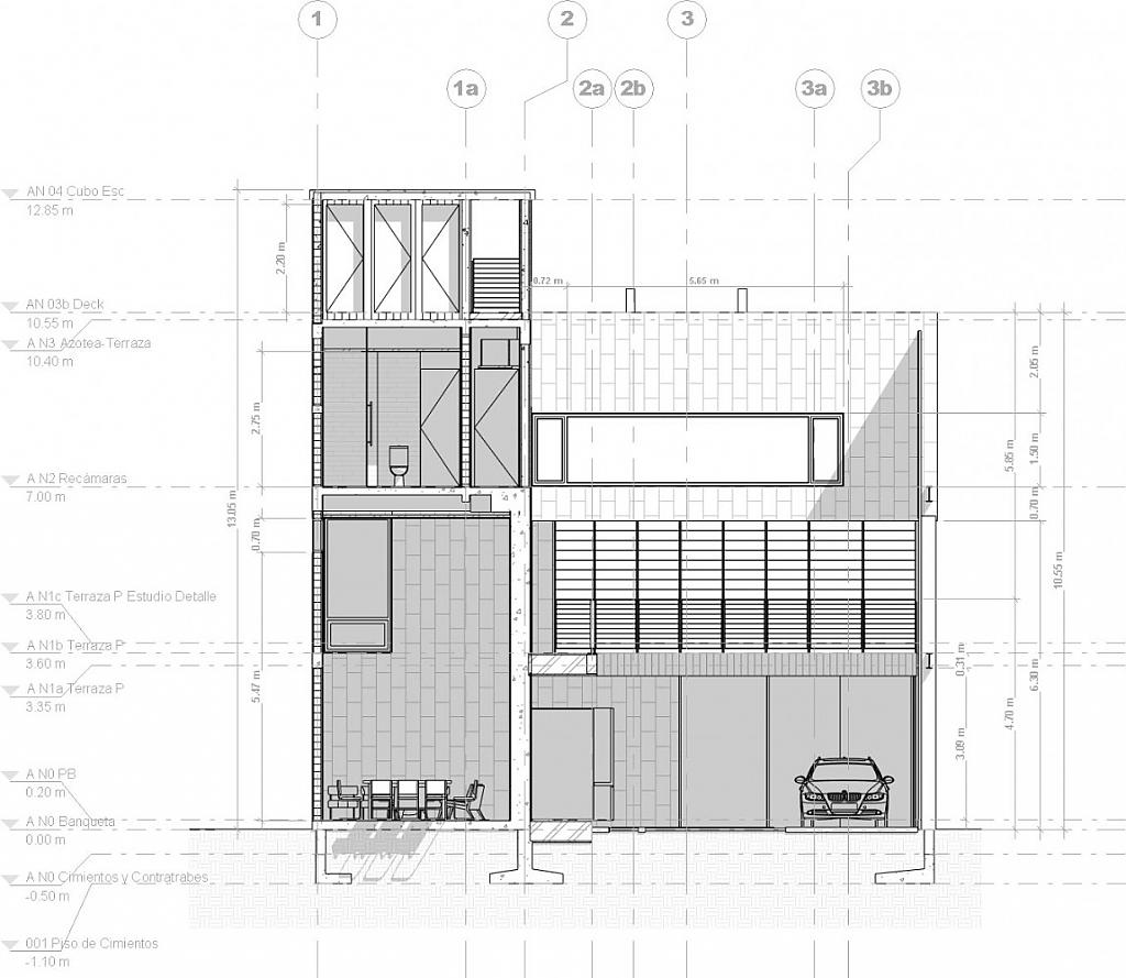
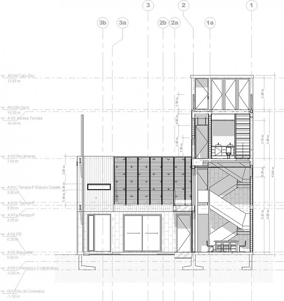
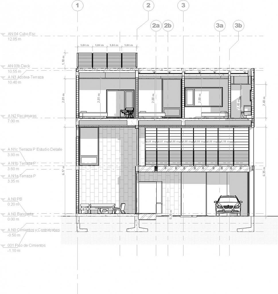
Построенное на маленьком земельном участке в 176 квадратных метров, строительное возвышение смотрит на юг великолепным вертикальным садом на стене. Это трехэтажное сооружение, где главная терраса должна быть на втором уровне и служить небольшой студией для вдохновения или разговоров. Область наполнена решимости в дизайне, чтобы воплотить в жизнь радикальное понятие “открытого сада патио”(стены наполненной зеленью), так как нет достаточного пространства для большого внутреннего двора, то всё великолепие зелени ютится как бы на самом доме. Главная веранда играет здесь роль соединения разных областей проживания.
Годные для повторного использования материалы, краска VOC, взаимные вентиляции и использование пассивной тепловой энергией сливаются в стратегии основного дизайна. Три дымохода теплового оттока работают главными устройствами, чтобы управлять температурой в областях спален. Всё это позволяет свести затраты электроэнергии и материалов к минимуму. Вертикальный сад повышает качество воздуха, делая его легким и полезным, так же создавая необходимую влажность. Идея озеленения здесь рассматривается не только с точки зрения эстетической практичности, но и пользы для здоровья, создания комфортных условий проживания. Решения в этом плане создают ещё возможности для дополнительного пространства.




























Разработан PAUL CREMOUX studio
