Частный дом Casa ST56 был спроектирован дизайнерами из Epstein Arquitectos в 2012 году. Он располагается в Сент-Томасе, частный пригород в Canning, Буэнос-Айрес, Аргентина.

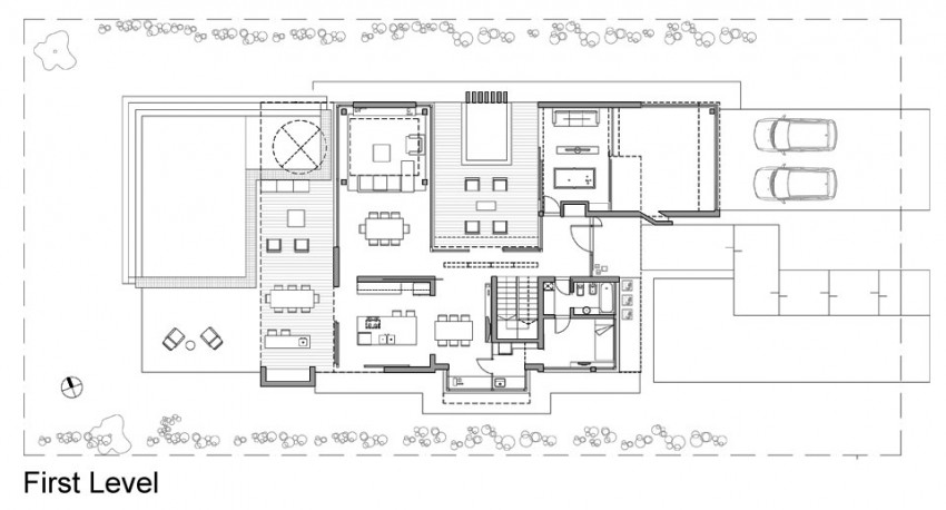
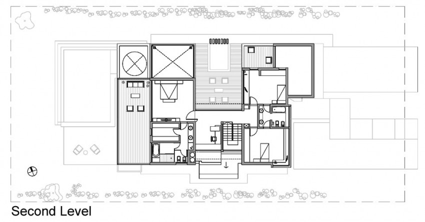
Жильё предназначено для одной семьи, здесь два этажа, а также подвальное помещение, разработанное, как винный зал. Рядом с ним есть гараж. Первый уровень заполнен социальными зонами, и помимо них есть ещё игровое пространство и гостевая спальная комната. Второй содержит три спальни для жильцов дома и ванные комнаты.
Строение как будто бы разделяется, чтобы предложить прекрасное место на открытом месте – здесь скульптурные формы, маленький водоём, а пол покрыт досками из тёмного дерева, но помимо них использовался местный камень. Двор сделали максимально просторным, чтобы территория была больше и свободнее. Крытая терраса позволяет проводить на ней время даже в дождь, или можно искупаться в открытом бассейне, чтобы снизить температуру тела в жару.














Дом в Аргентине от Epstein Arquitectos.
