Посетителям Форум-Град уже не раз предлагались к ознакомлению шикарные особняки и загородные дома. Поговорим сегодня ещё об одной идее дизайна интерьера. Современный дом Meridian 105 Architecture расположен в модном районе горной местности Денвера, штат Колорадо, США. Проект стал великолепным дополнением к эпохе бунгало 1940-х годов.










Оригинальная конструкция с крепким бетонным фундаментом и кирпичной внешней стеной оказалась отличным поводом сэкономить на строительных работах. Решение команды дизайнеров состояло в том, чтобы снести крышу и добавить вместо неё ещё один уровень, что сделало дом по истине оригинальным.
 Градостроительный кодекс Денвера стал проблемой для придания уникальности строению. Неудачной была не только оригинальная структура, не соответствующая стандарту более чем на фут. Любые дополнения по высоте должны соответствовать действующим стандартам, которые предписывают не увеличивать высоту более чем на 17 дюймов. В итоге, заканчивающиеся консолями надстройки отклоняются более чем на 4 дюйма от первоначальной кирпичной стены.
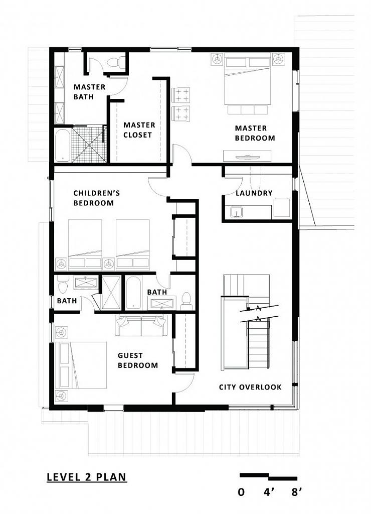
В целом, три восхитительных спальни были построены на втором этаже, а терраса с офисом — на третьем. На первом этаже задняя стена была снесена и заменена стеклом, открывающим шикарный вид на великолепный задний двор. Ещё одним превосходным дополнением стал двухсторонний камин, ставший некой изюминкой в восхитительном интерьере. Драматическая внутренняя пустота соединяет все три этажа прекрасной открытой лестницей. Превосходное решение, не правда ли? Поделитесь мнением в комментариях!






